416 W 20th Street, New York City, NY 10011
416 W 20th Street

416 W 20th Street

416 W 20th Street, New York City, NY

$9,995,000

HIGHLIGHTS
  • 6 Beds
  • 4 Full Baths
  • 5,878 Sq.Ft. Living
  • 1839 Year Built
  • Pending Status
  • RLS20053040 MLS® ID
An Architectural Masterpiece on Chelsea's Most Storied Block

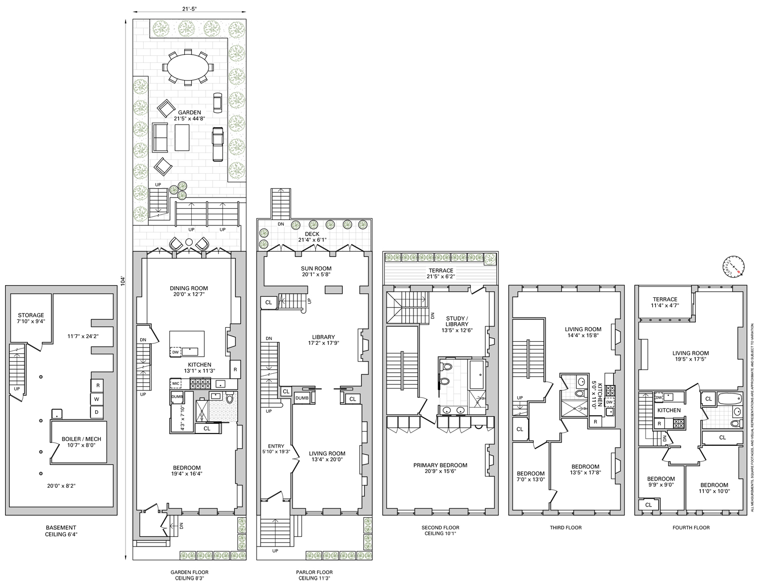
A rare opportunity to own a landmark townhouse on one of New York's most beautiful and sought-after streets -- Cushman Row on the historic Seminary Block in West Chelsea.

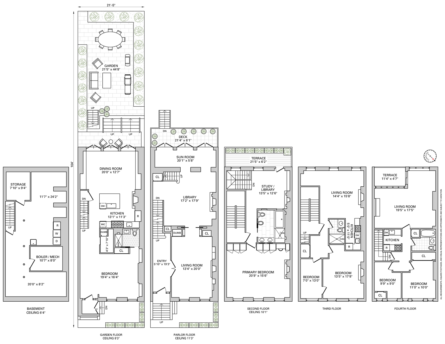
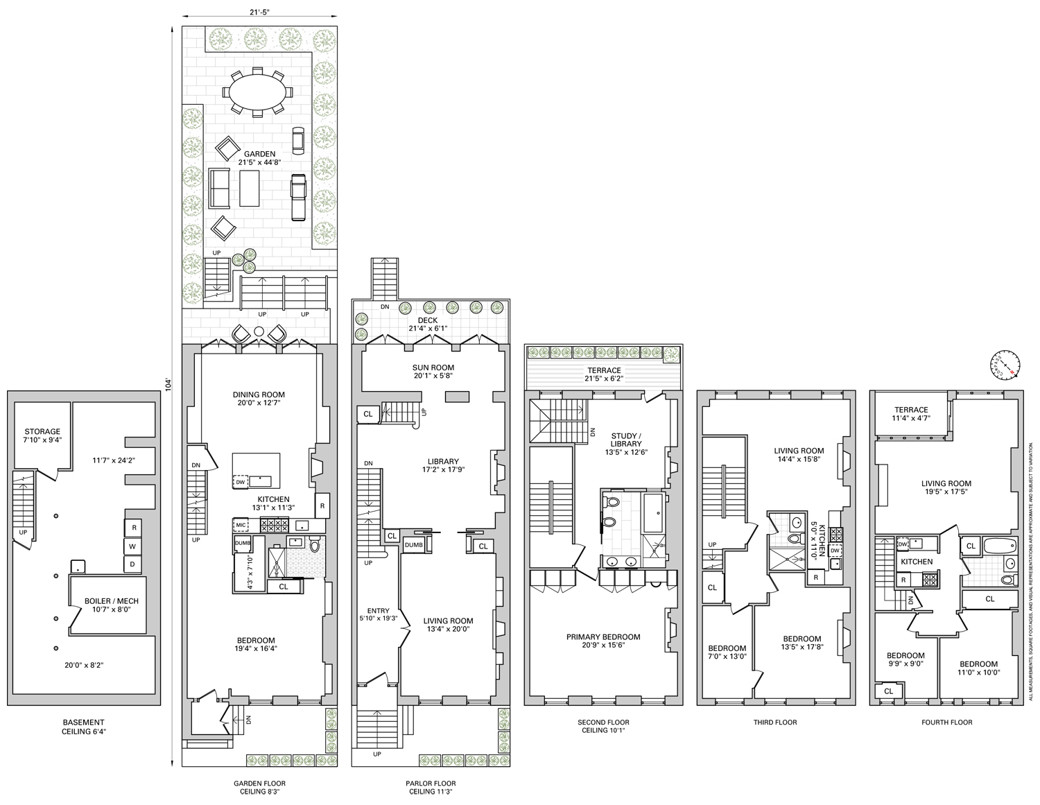
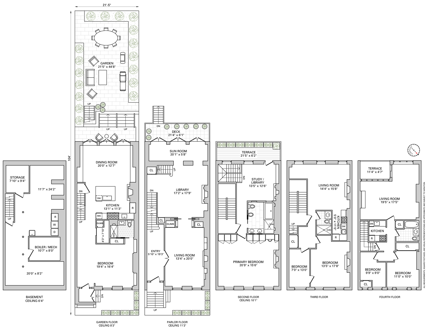
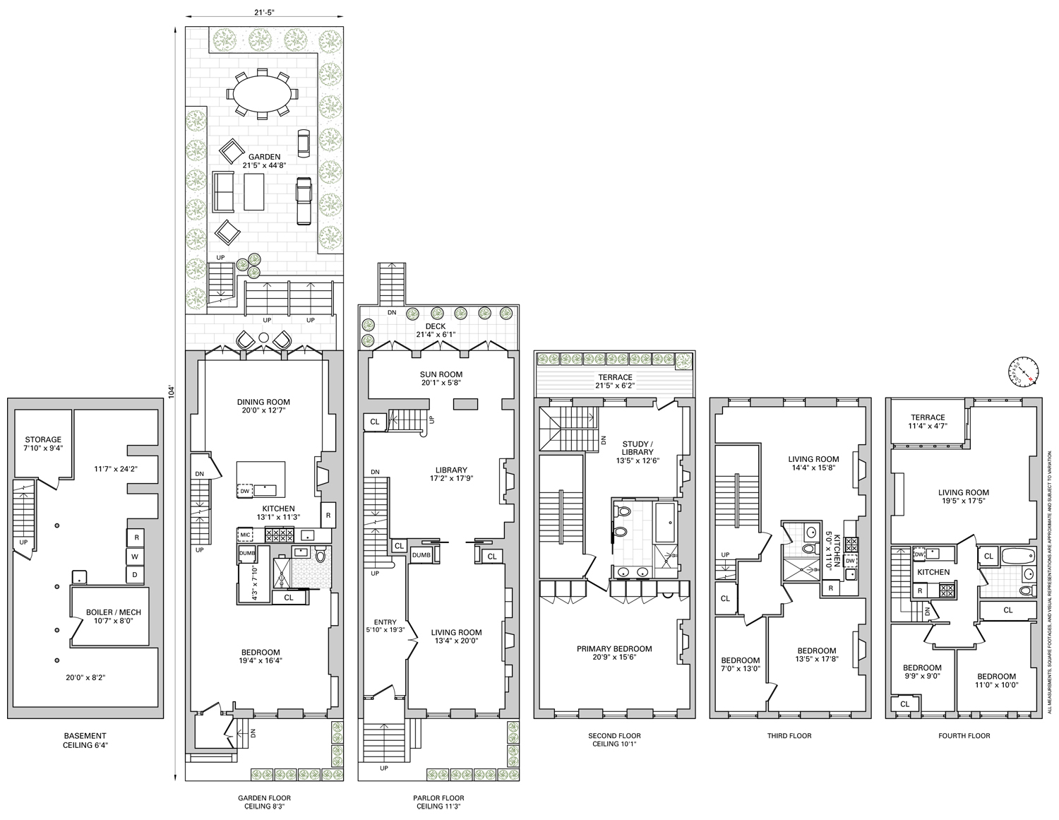
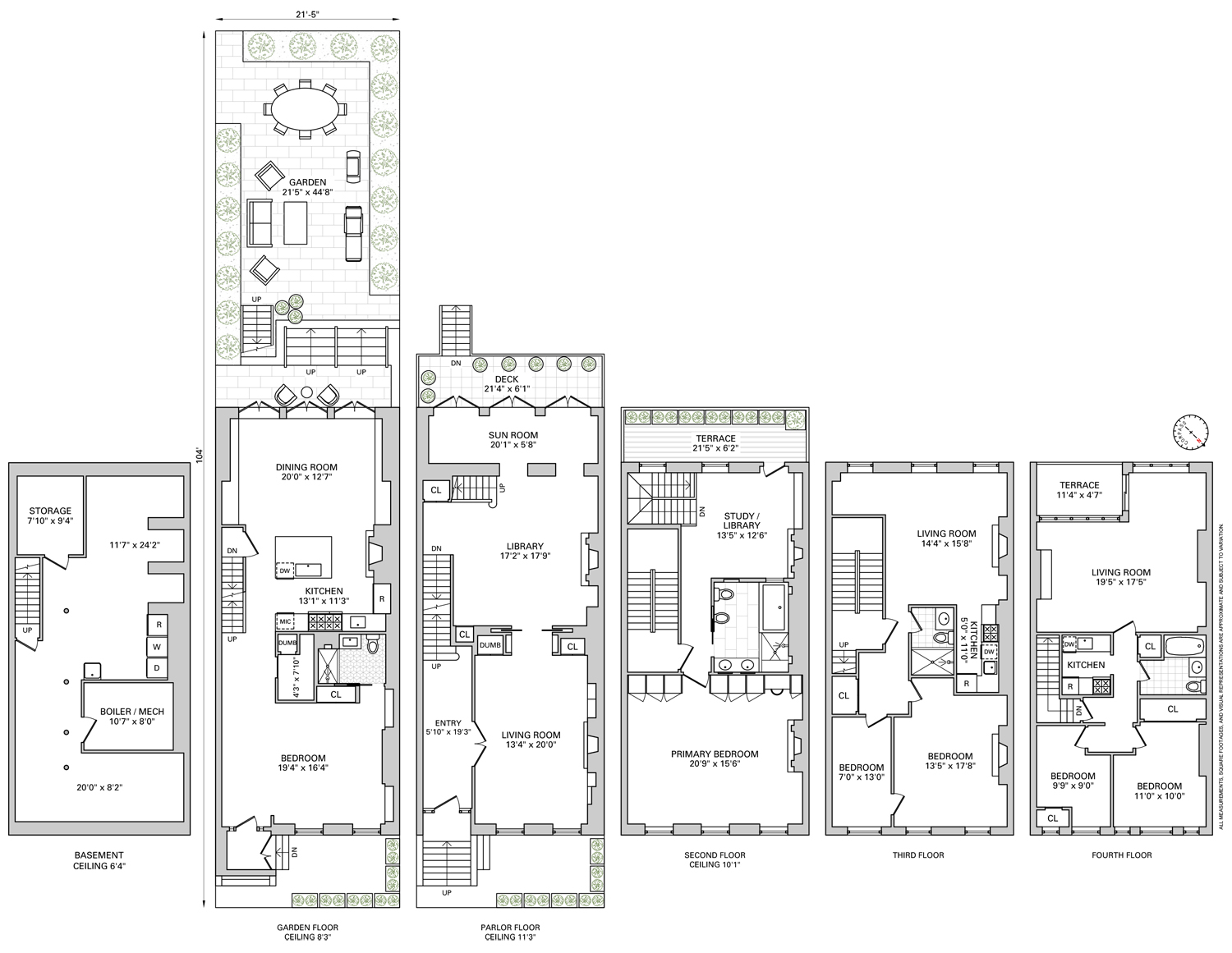
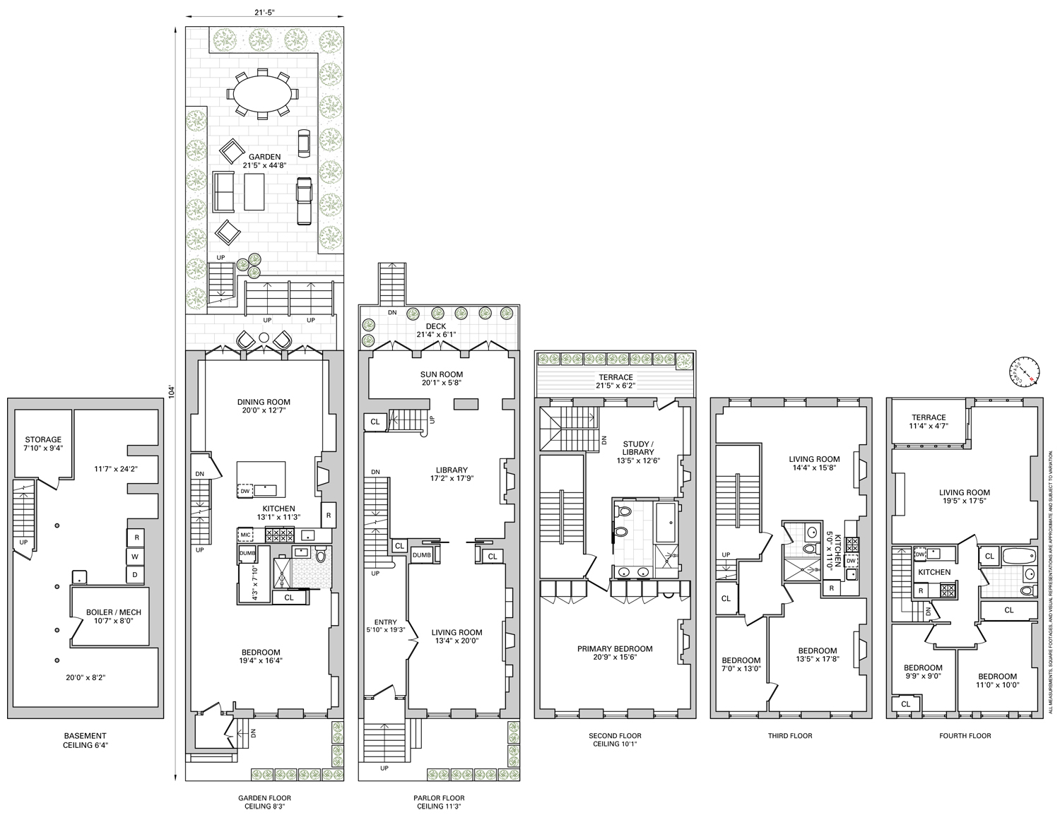
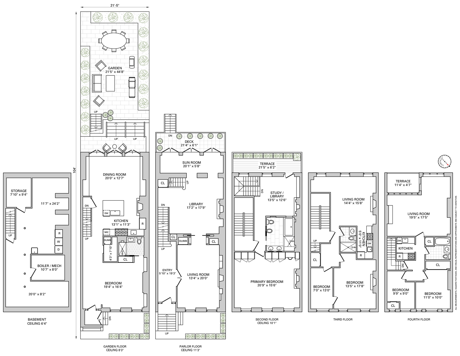
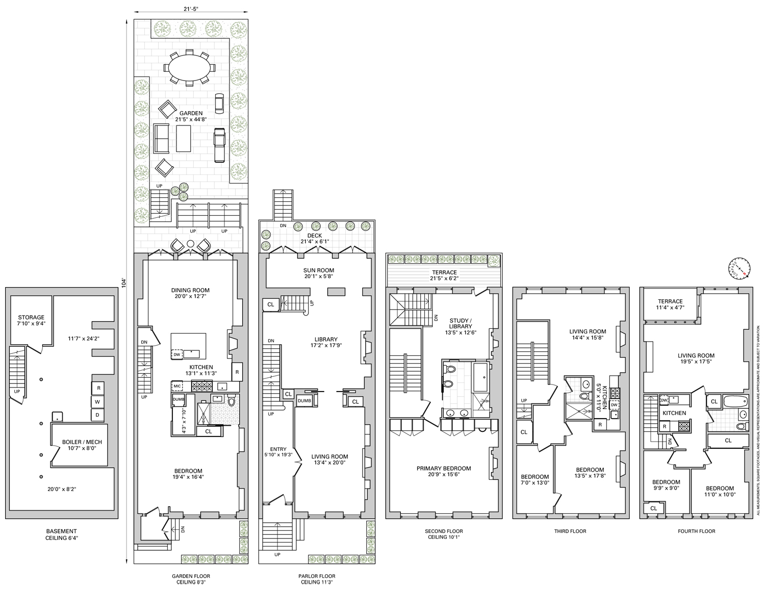
This 21-foot-wide, 6,000-square-foot masterpiece at 416 West 20th Street offers more than 1,400 square feet of private gardens and terraces, an extraordinary fusion of 19th-century grandeur and modern sophistication.

Masterfully reimagined by Hernandez-Eli Architecture, this residence honors its architectural heritage while embracing the comforts of contemporary luxury living. Currently configured as a private three-floor Owner's Triplex with two full-floor, income-producing residences, the property offers both flexibility and elegance -- a rare balance in Manhattan townhouse living.

Historic Elegance, Modern Refinement

Every detail has been meticulously restored and reimagined -- from the seven wood-burning fireplaces to the handcrafted moldings and ironwork that define Cushman Row's iconic charm.

Four distinct outdoor sanctuaries -- including a lush south-facing garden, three private terraces, and a gracious front stoop -- create a seamless connection between indoor and outdoor living.

The Owner's Triplex

Parlor Floor: A grand double-door entry leads into an airy expanse of soaring ceilings, dual fireplaces, and meticulously restored plasterwork. Sunlight filters through the adjoining sunroom, opening to a private terrace overlooking the garden. Designed for both formal and relaxed entertaining, this level offers an elegant canvas for art, music, and gatherings -- a space to live beautifully among friends and family.
Garden Level: A chef's kitchen with bespoke cabinetry and top-tier appliances opens seamlessly to a tiered, landscaped garden -- an ideal setting for al fresco dining and intimate gatherings. The formal dining room, anchored by a stately fireplace, exudes character and warmth, creating an inviting atmosphere for entertaining.
Primary Suite (Third Floor): A sophisticated full-floor sanctuary bathed in natural light, featuring a marble-clad spa bath, stately fireplace, and private library that opens onto a serene terrace overlooking the garden. A blend of elegance and tranquility -- a true escape in the heart of the City.

Cellar: Flexible space for a gym, screening room, or playroom with laundry and abundant storage.

Income & Flexibility

Fourth Floor: Renovated two-bedroom apartment with high ceilings, fireplace, and sunlight throughout.

Fifth Floor: Another two-bedroom residence with skylights, fireplace, and a private terrace.
Both units are presently income generating or can be seamlessly incorporated into the Owner's Triplex for a grand single-family home of exceptional scale and character.

A Setting Steeped in Beauty and History

Overlooking the Gothic spires and gardens of the General Theological Seminary, this home offers a rare blend of serenity and proximity to the city's most dynamic destinations -- the High Line, Hudson River Park, Chelsea Market, the Meatpacking District, and world-class art galleries.

Apres Global Perspective

At Apres Global, we believe extraordinary homes tell the story of timeless craftsmanship and modern vision. 416 West 20th Street stands as one of Chelsea's crown jewels - a residence where history, architecture, and artistry converge in perfect harmony.
Show MoreShow Less
Elena Ash

Elena Ash

Licensed Real Estate Salesperson

Features & Amenities

Interior

  • Total Bedrooms6
  • Total Bathrooms4
  • Full Bathrooms4
  • Laundry roomCommon On Floor, See Remarks
  • FlooringHardwood
  • FireplaceOther
  • APPLIANCESDryer, Washer
  • other interior FeaturesCrown Molding, High Ceilings

Area & Lot

  • Status Pending
  • Living Area5,878 Sq.Ft.
  • Total Area5,878 Sq.Ft.
  • MLS® IDRLS20053040
  • TypeResidential
  • YEAR BUILT1839
  • neighborhoodChelsea
  • Architecture StylesGreek Revival

Exterior

  • STORIES3
  • lot featuresFront Yard
  • AIR CONDITIONINGCentral Air
  • other exterior FeaturesBalcony, Private Entrance, Private Outdoor Space Over 60 Sqft

Financial

  • Sales Price$9,995,000
  • Real Estate Tax $72,900/yr
image

Schedule a Showing

I would love to show you this beautiful property. Please select your preferred date and time below. I will be in touch shortly to confirm your appointment.

Schedule a Showing

I would love to show you this beautiful property. Please select your preferred date and time below. I will be in touch shortly to confirm your appointment.

Thank you for your interest in 416 W 20th Street, New York City, NY 10011. We are reviewing your request and will be in touch shortly!

Mortgage Calculator

Estimate your monthly mortgage payment, including the principal and interest, property taxes, and HOA. Adjust the values to generate a more accurate rate.

All estimates are provided for informational purposes only. Actual amounts may vary.
$0,000 Your Payment 20 15 65
$0,000 Your Payment

Chelsea

Chelsea is an expansive west-side neighborhood that includes brownstones, row houses, art galleries, warehouses, and much of The Highline.

Chelsea

Work With Elena

Elena takes pride in her profession providing clients with the highest level of privacy and discretion, great trust and loyalty, plus a vast knowledge of today’s global market conditions.

Let's Connect

Follow Me On Instagram